THÔNG TIN CÔNG TRÌNH
Dự án: Nghĩa’s House
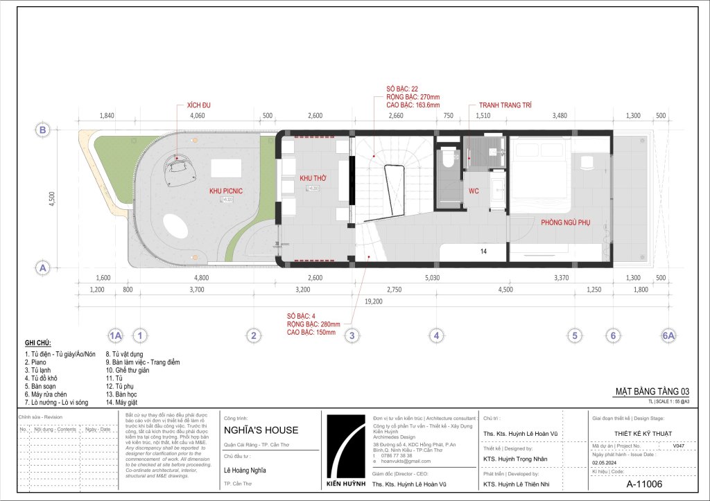
Quy mô:1 trệt 2 lầu
Diện tích: 4.5 x 16.2
Loại hình công trình: Nhà phố
Phong cách thiết kế: Hiện đại

Dự án: Nghĩa’s House
Quy mô:1 trệt 2 lầu
Diện tích: 4.5 x 16.2
Loại hình công trình: Nhà phố
Phong cách thiết kế: Hiện đại
