THÔNG TIN CÔNG TRÌNH
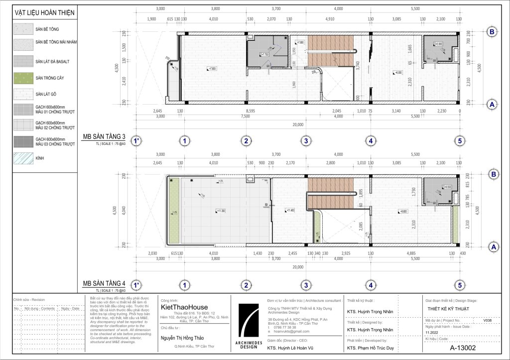
Dự án: Kiệt Thảo’s House
Quy mô:1 trệt 1 lửng 2 lầu và sân thượng
Diện tích: 4,5 x 20
Loại hình công trình: Nhà phố
Phong cách thiết kế: Hiện đại

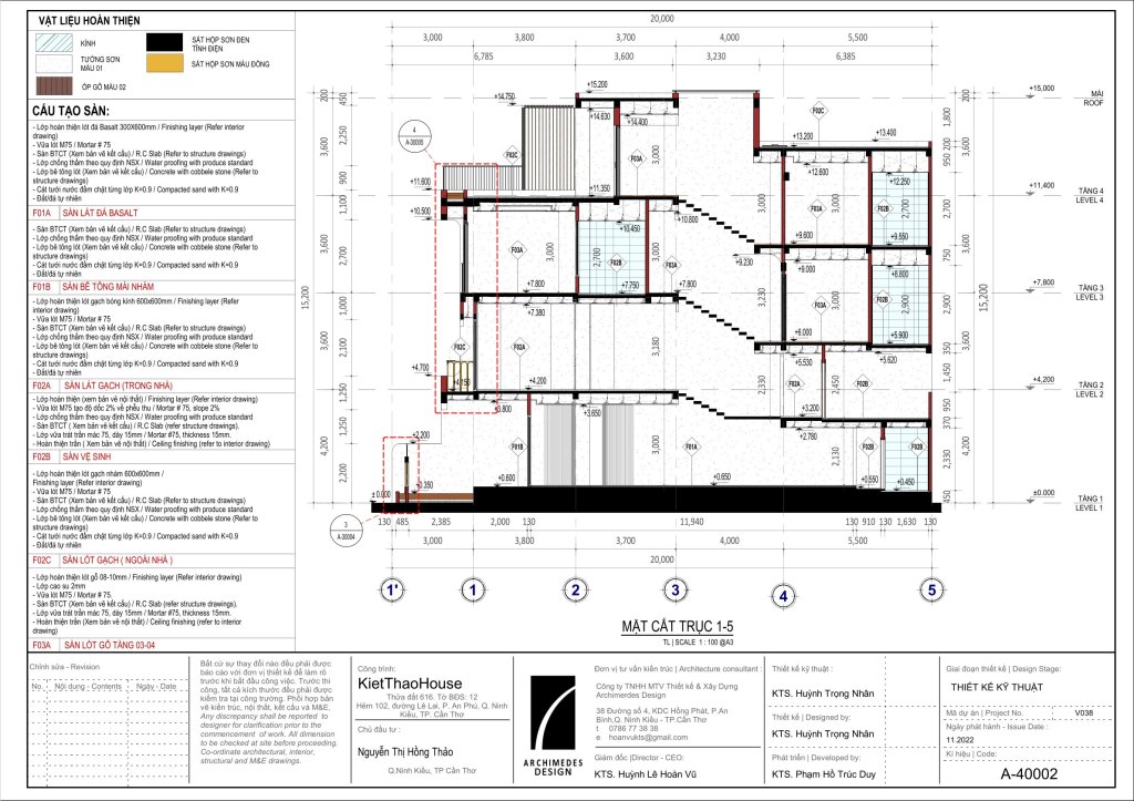
Dự án: Kiệt Thảo’s House
Quy mô:1 trệt 1 lửng 2 lầu và sân thượng
Diện tích: 4,5 x 20
Loại hình công trình: Nhà phố
Phong cách thiết kế: Hiện đại
